完成見学会のご案内

古民家再生_完成見学会@能勢町

完成見学会 (予約受付中)
【日時】 2023年4月29日(土) 
①11:00②13:30
【会場】能勢町(完全予約制)

現在、能勢町にて100年前に移築された古民家の再生を設計・施工でお手伝いさせていただいております。

新しい暮らしを古き良きご実家で。
刻まれた歴史はさらに1代つながることがきまり、きっと家も喜んでくれていると思います。

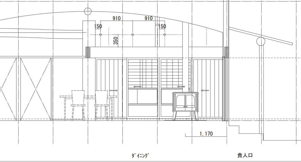
アーチを描く天井が梁を綺麗に魅せてくれます。

見どころ:薪ストーブ・アーチ天井・外観をそのまま生かした古民家再生・回る動線

谷邸古民家再生完成見学会 谷邸古民家再生完成見学会 谷邸古民家再生完成見学会 谷邸古民家再生完成見学会